物件一覧
id IS NOT NULL and id != 0 and price IS NOT NULL and price !=0 and (members IS NULL or members=0) and (status=1 or status=2 or status=3) and own_company=2 and (del IS NULL or del=0) and (main_traffic_line_id=3 and main_traffic_station_id=15 or sub_traffic1_line_id=3 and sub_traffic1_station_id=15 or sub_traffic2_line_id=3 and sub_traffic2_station_id=15)
阪急神戸線「夙川」駅の物件をさがすid IS NOT NULL and id != 0 and price IS NOT NULL and price !=0 and (members IS NULL or members=0) and (status=1 or status=2 or status=3) and own_company=2 and (del IS NULL or del=0) and (main_traffic_line_id=3 and main_traffic_station_id=15 or sub_traffic1_line_id=3 and sub_traffic1_station_id=15 or sub_traffic2_line_id=3 and sub_traffic2_station_id=15)
CASE WHEN revenue = 1 THEN 1 ELSE 0 END, created_at DESC
-
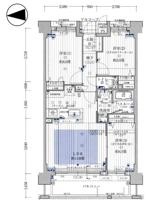
ワコーレ夙川公園ザ・テラス
4,650万円
more
- 西宮市川東町
- 兵庫県
- 阪神本線「香櫨園」駅徒歩4分
-
階・間取/3階/6階建・3LDK
専有面積/62.06m²
築年月/2018年1月
CASE WHEN revenue = 1 THEN 1 ELSE 0 END, created_at DESC
-
西宮市苦楽園六番町中古戸建
5,580万円
more
- 西宮市苦楽園六番町
- 兵庫県
- JR東海道・山陽本線「芦屋」駅バス13分「苦楽園五番町」停歩2分
-
階・間取/2階建・3LDK
建物・土地/152.07m²・261.85m²
築年月/1982年12月
CASE WHEN revenue = 1 THEN 1 ELSE 0 END, created_at DESC
-
レフィナード夙川公園
4,380万円
more
- 西宮市川西町
- 兵庫県
- JR神戸線「さくら夙川」駅徒歩15分
-
階・間取/4階/5階建・3LDK
専有面積/86.48m²
築年月/1984年11月
CASE WHEN revenue = 1 THEN 1 ELSE 0 END, created_at DESC
-
西宮市剣谷町土地
5,980万円
more
- 西宮市剣谷町
- 兵庫県
- 阪急神戸線「夙川」駅バス12分「柏堂町」停歩7分
-
土地面積/410.00m²
建築条件/なし
CASE WHEN revenue = 1 THEN 1 ELSE 0 END, created_at DESC
-
ディオレ夙川公園
5,980万円
more
- 西宮市結善町
- 兵庫県
- 阪急電鉄神戸線「夙川」駅徒歩8分
-
階・間取/3階/4階建・3LDK
専有面積/80.51m²
築年月/1996年2月
CASE WHEN revenue = 1 THEN 1 ELSE 0 END, created_at DESC
-
西宮市剣谷町中古戸建
11,000万円
more
- 西宮市剣谷町
- 兵庫県
- 阪急神戸線「夙川」駅バス13分
-
階・間取/2階建・5SLDK
建物・土地/124.70m²・463.07m²
築年月/2000年4月
CASE WHEN revenue = 1 THEN 1 ELSE 0 END, created_at DESC
-
グランステイツ夙川アネックス
4,298万円
more
- 西宮市清水町
- 兵庫県
- 阪急電鉄神戸線「夙川」駅徒歩9分
-
階・間取/1階/5階建・2LDK
専有面積/67.60m²
築年月/1996年9月
CASE WHEN revenue = 1 THEN 1 ELSE 0 END, created_at DESC
-
西宮市老松町新築戸建
6,480万円
more
- 西宮市老松町
- 兵庫県
- 阪急甲陽線「苦楽園口」駅徒歩18分
-
階・間取/2階建・1SLDK
建物・土地/105.29m²・99.32m²
築年月/2025年8月
CASE WHEN revenue = 1 THEN 1 ELSE 0 END, created_at DESC
-
ヴィラン夙川山手
2,300万円
more
- 西宮市深谷町
- 兵庫県
- 阪急電鉄神戸線「夙川」駅徒歩14分
-
階・間取/4階/7階建・4LDK
専有面積/108.82m²
築年月/1986年1月
CASE WHEN revenue = 1 THEN 1 ELSE 0 END, created_at DESC
-
夙川グランドハイツ
5,900万円
more
- 西宮市川東町
- 兵庫県
- JR神戸線「さくら夙川」駅徒歩10分
-
階・間取/14階/14階建・3LDK
専有面積/88.90m²
築年月/1998年4月
CASE WHEN revenue = 1 THEN 1 ELSE 0 END, created_at DESC
-
ネオ・ディ夙川
1,050万円
more
- 西宮市御茶家所町
- 兵庫県
- JR神戸線「さくら夙川」駅徒歩7分
-
階・間取/2階/3階建・1K
専有面積/16.59m²
築年月/1994年3月
CASE WHEN revenue = 1 THEN 1 ELSE 0 END, created_at DESC
-
夙川グリーンタウン
3,480万円
more
- 西宮市羽衣町
- 兵庫県
- 阪急電鉄神戸線「夙川」駅徒歩2分
-
階・間取/5階/17階建・2LDK
専有面積/68.79m²
築年月/1977年10月
CASE WHEN revenue = 1 THEN 1 ELSE 0 END, created_at DESC
-
西宮市松園町土地
5,480万円
more
- 西宮市松園町
- 兵庫県
- 阪急神戸線「夙川」駅徒歩7分
-
土地面積/79.42m²
建築条件/なし
CASE WHEN revenue = 1 THEN 1 ELSE 0 END, created_at DESC
-
ジオ苦楽園桜町
6,490万円
more
- 西宮市桜町
- 兵庫県
- 阪急電鉄甲陽線「苦楽園口」駅徒歩9分
-
階・間取/1階/4階建・4LDK
専有面積/100.23m²
築年月/2014年7月
CASE WHEN revenue = 1 THEN 1 ELSE 0 END, created_at DESC
-
西宮市深谷町新築戸建 2号地
6,980万円
more
- 西宮市深谷町
- 兵庫県
- 阪急神戸線「夙川」駅徒歩14分
-
階・間取/2階建・3LDK
建物・土地/96.49m²・123.01m²
築年月/-
CASE WHEN revenue = 1 THEN 1 ELSE 0 END, created_at DESC
-
進和苦楽園アーバンライフB棟
3,100万円
more
- 西宮市苦楽園五番町
- 兵庫県
- 阪急電鉄甲陽線「苦楽園口」駅徒歩23分
-
階・間取/6階/7階建・2SLDK
専有面積/122.88m²
築年月/1979年3月
CASE WHEN revenue = 1 THEN 1 ELSE 0 END, created_at DESC
-
西宮市西平町土地
9,800万円
more
- 西宮市西平町
- 兵庫県
- 阪急甲陽線「苦楽園口」駅徒歩14分
-
土地面積/272.00m²
建築条件/なし
CASE WHEN revenue = 1 THEN 1 ELSE 0 END, created_at DESC
-
西宮市柏堂西町土地
6,880万円
more
- 西宮市柏堂西町
- 兵庫県
- 阪急神戸線「夙川」駅バス12分「柏堂町」停歩11分
-
土地面積/414.96m²
建築条件/なし